Leave a Message

By providing your contact information to The Trisha Cook Team, your personal information will be processed in accordance with The Trisha Cook Team's Privacy Policy. By checking the box(es) below, you consent to receive communications regarding your real estate inquiries and related marketing and promotional updates in the manner selected by you. For SMS text messages, message frequency varies. Message and data rates may apply. You may opt out of receiving further communications from The Trisha Cook Team at any time. To opt out of receiving SMS text messages, reply STOP to unsubscribe.

Thank you for your message. We will be in touch with you shortly.

Explore Our Properties
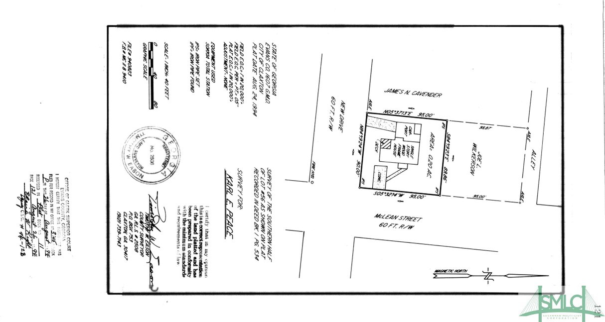
1/2 Lot 56 Mclean Street
1/2 Lot 56 Mclean Street
1/2 Lot 56 Mclean Street
1/2 Lot 56 Mclean Street
VIEW PHOTOS
$10,000

1/2 Lot 56 Mclean Street

8,712 Sq.Ft.

Description

Buildable lot with NO HOA located in the heart of Claxton right off of US-280 & close to schools, restaurants & shopping. Easy commute to the Hyundai Plant, Statesboro & Savannah.

Share Property

Location

1/2 Lot 56 Mclean Street, Claxton, GA 30417

Status

Sold
Trisha Cook

Trisha Cook

TITLE

REALTOR®

LICENSE

328637

Property Amenities

Area & Lot
Lot Area 8,712 Sq.Ft.
MLS® ID SA309917
High School Claxton
Middle School Claxton
Elementary School Claxton
View Description Trees/Woods
Type Land
Status Sold
Exterior
Water Source Public
Sewer Public Sewer
Lot Features Interior Lot, Wooded
Utilities Underground Utilities
Finance
Sales Price $10,000
Real Estate Tax $61 yearly

360 Virtual Tour

Take a tour of this property

Work With Us

Join hands with Savannah’s premier coastal specialists for a real estate experience that’s as unique as you are. Whether buying, selling, or exploring new opportunities, our team is dedicated to guiding you with warmth, and expert insight.